Баня без печки просто не может быть, также как и банная печь без бака. А это значит, что любой кто будет делать, строить баню своими руками обязательно столкнется с тем, что ему придется выбирать и рассматривать какой-либо вариант печки с баком под горячую воду. И наша статья как призвана в какой-то степени облегчить эти терзания на счет выбора. То есть мы предложим несколько вариантов печек с баком на ваш выбор. А что уж действительно выбрать, это решать только вам.
В статье будет приведена общая информация о возможный вариантах печек. То есть представлен общий вид, а также для некоторых случаев приведены размеры для сборочного чертежа. В принципе даже такой информации хватит для того, чтобы определиться с выбором, взвесить все за и против и в итоге начать делать печь. Что же, давайте рассмотрим каждый из возможных вариантов печи с баком, с комментариями.
Варианты печи в баню с баком
Первый вариант предполагает монтаж над плитой бака и каменки. То есть все выполняется по самой что не есть классической схеме. Вверху установлен бак с крышкой, ближе к передку печки и позади каменка. Заметьте, что сама труба идет через бак, что в известной степени способно повысить теплоотдачу в воду и нагревать эту самую воду более эффективно. Ну а в каменку должны быть засыпаны камни.

Второй вариант можно сказать является вариацией первого. Здесь бак выполнен прямо по центру печи. Такая вариация печки предполагает, что каменки будет за дверкой впереди. Открыл дверку и плеснул воды. Перегородку 2 лучше выполнить глухую, дабы вода не попадала в печную топку.

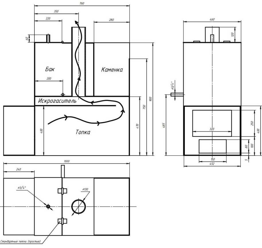
Третий вариант представлен схематично. Предполагается как бы два отсека для печи. В первом греется вода, во втором каменка. Такой вариант будет уместен если необходимо разнести эти две опции между собой.

Еще два варианта представлено на следующей картинке. В первом случае бак находится на самом верху. Во втором случае бак встроен сбоку.

Неплохой вариант печки с баком, когда бак установлен сбоку у печи. При этом внизу имеется кран для спуска воды. Бак можно сделать по одной стенке или по двум. А быть может кто-то сделает бак даже вокруг печи.

Вариантов как вы видите много. Получивший популярность из за того, что здесь все можно купить. Покупается бак труба, который и насаживается на дымоход, то есть на печь, а потом от него идет дымоход вверх.

Ну и еще один весьма интересный вариант, когда бак ставится отдельно от печи. Замечателен этот вариант тем, что его можно использовать для печи которая первоначально вовсе была приспособлена не для бани. Кроме того, бак можно поставить поодаль от печки, что тоже большой плюс.

Мы скажем больше. Этот вариант со всеми подробностями рассмотрен у нас на сайте и вы можете посмотреть как и что делать с пошаговыми фото и подробными пояснениями. "Банная печь с баком".
Что же, нам осталось еще раз повторить, что выбор остается за вами. И второе, о чем просто необходимо сказать, так это о том, что печку, по крайней мере бак, лучше делать из нержавейки. Ведь бак из "черного" железа будет сильно коррозировать, особенно во время нагрева и кипения воды, а значит вода будет грязная и мутная. Сами понимаете как не приятно мыться будет такой водой. Вот собственно и вся информация. С легким паром!